名古屋の高級賃貸マンションサイト
名古屋地下鉄東山線・桜通線・鶴舞線・名城線/東海道本線(東海)

トップ > TENAS今池  0905号室

TENAS今池  0905号室 SERIES
COLLECTION
SERIES COLLECTION

Dataデータ

● 賃料 104,000円(8,000円)

● 間取り 1LDK(36.4m2

● 愛知県名古屋市千種区今池1丁目18番17号

Pointポイント

Room Information部屋情報

状 態 空室/入居時期:2025年10月25日
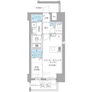
間取タイプ 1LDK
専有面積 36.4m2
賃 料 104,000円
敷 金 1ヶ月
保証金 なし
所在階 9階部分
間取詳細 LDK(約10.0帖)・洋室(約2.8帖)
方 位 南向き
管理費 8,000円
礼 金 なし 法人契約の場合は礼金1ヶ月
償却/敷引 なし

Building Information建物情報

物件種別 [住居用] マンション
所在地 愛知県名古屋市千種区今池1丁目18番17号
交 通 東山線「今池」徒歩3分
桜通線「今池」徒歩3分
中央線「千種」徒歩6分
構 造 鉄筋コンクリート造 地上12階 
築 年 2023年10月築
駐車場 敷地内駐車場/29,700円

Mapマップ

Equipment設備・おすすめ

条件  2人入居可能   保証人不要 
キッチン  給湯器(都市ガス)   ガスコンロ(2口)   システムキッチン   対面式キッチン 
水廻り  風呂   トイレ(水洗)   洗面台(独立)   浴室乾燥機   暖房便座   シャワートイレ   洗髪洗面化粧台   バス・トイレ別   洗濯機置場(室内) 
冷暖房  エアコン 
収納  ウォークインクローゼット   シューズボックス 
放送・通信  BS   CS   光ファイバー   ケーブルTV   インターネット対応(回線工事不要・契約不要)   ネット使用料不要   高速ネット対応   Wi-Fi 
セキュリティ  オートロック   オートロック ハンズフリー   宅配BOX   防犯カメラ   インターホン(カメラ付き) 
その他  専用ごみ置場   エレベーター   オートバイ駐輪場   自転車置場   制震構造   電気   ガス(都市ガス)   水道(公営)   排水(公共下水)   バルコニー/ベランダ   照明   フローリング   日当たり良好 

Otherその他

町会費 なし
他諸経費 保険:保険要加入 管理会社指定(必須) 2年契約 17,000円 ~
※ 特記されているものだけを表示していますので、ご確認ください。
その他
情報更新日 2025-10-17 18:50:37

Contactお問い合わせ

名鉄コミュニティライフ 株式会社 名古屋支社
TEL:052-589-0862
9:00~18:00/土日祝日休
お問い合わせ